
All Range Of Our Products
Our main products, maintenance and tube replacement: Coking equipment, tube furnace, primary cooler tube replacement, spiral plate heat exchanger, crude benzene condensing cooler, CDQ water supply preheating system, power plant equipment, condenser tube replacement, HV/LV heater, tube cooler, heater exchanger and so on.
Product Details ▶
An economizer is an energy-saving device commonly used in industrial equipment to recover waste heat from exhaust gases or other sources. It is often installed in boiler systems, where it preheats feedwater or air, reducing energy consumption and improving overall system efficiency. By utilizing otherwise wasted heat, economizers help cut fuel usage, leading to cost savings and enhanced performance.
Economizers are essential components in modern industrial systems, particularly in industries that rely on boilers, steam generation, or HVAC systems. By preheating feedwater or air, economizers reduce the amount of fuel required to achieve the desired operational temperature. This simple but highly effective process results in significant fuel savings, directly impacting your bottom line. For businesses looking to improve profitability, economizers represent a smart, cost-effective investment.
At Boyu Industrial Group, our economizers are designed for maximum heat recovery, providing a quick return on investment. Whether you’re in manufacturing, power generation, or other energy-intensive industries, installing an economizer in your system can lead to substantial cost reductions. With energy prices continuing to rise, now is the perfect time to enhance your energy strategy with Boyu's reliable and efficient economizer solutions.

Reducing your company’s carbon footprint has become increasingly important as regulations tighten and customers demand greener practices. Boyu Industrial Group understands this, which is why our economizers not only offer financial benefits but also contribute to sustainability goals. By lowering fuel consumption, our economizers significantly cut greenhouse gas emissions, helping your company stay compliant with environmental standards while positioning your brand as a leader in sustainability.
Every ton of fuel saved by using an economizer leads to a corresponding reduction in CO₂ emissions. By integrating Boyu economizers into your operations, you’re taking meaningful steps towards reducing environmental impact. It’s not just about cost savings—our products also help you build a reputation as a forward-thinking, eco-conscious company that values long-term sustainability.
Boyu Industrial Group is committed to delivering high-quality, reliable economizer solutions tailored to meet the needs of various industries. Our team of experts works closely with clients to design and implement economizers that align with specific operational requirements, ensuring seamless integration and optimized performance. With decades of experience in industrial engineering, we understand the importance of energy efficiency, and we are dedicated to helping our customers achieve it.
Our economizers are built with durability and efficiency in mind, ensuring long-term performance and maximum heat recovery. Whether you need an economizer for a boiler, steam generation system, or HVAC application, Boyu Industrial Group offers a wide range of products to suit your needs. Plus, our expert after-sales support ensures that you get the most out of your investment.
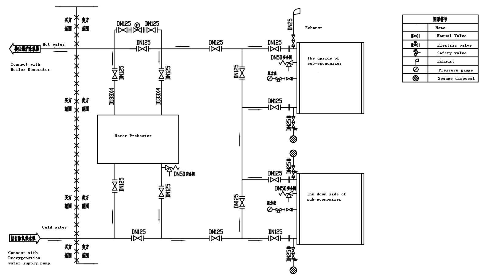
At the Rizhao boutique base of Shanguan, Boyu Industry was responsible for designing and manufacturing an integrated waste heat recovery system for a CDQ (Coke Dry Quenching) application. This project encompassed a range of heat exchange equipment, including the 140.h×4 Coke Quenching Auxiliary Economizer (Model 140TH×4), preheaters, primary coolers, final coolers, and other key components.
Boyu Industry provided a complete, customized heat recovery solution that seamlessly integrated the economizer, preheaters, primary coolers, and final coolers. This system optimized heat exchange, significantly reducing energy costs and emissions while meeting the client’s sustainability and efficiency targets.

If you’re looking to reduce fuel costs, improve operational efficiency, and meet sustainability goals, Boyu Industrial Group’s economizers are the solution you need. Our advanced technology helps businesses stay competitive in today’s energy-conscious world. Contact us today to learn how we can help you optimize your energy strategy and take your business to the next level.
Leave a message for quotation ▶
Products Recommended ▶
PROFESSIONAL CONSULTATION
If you are interested in our products and want to know more details, please leave a message here, we will reply you as soon as we can.